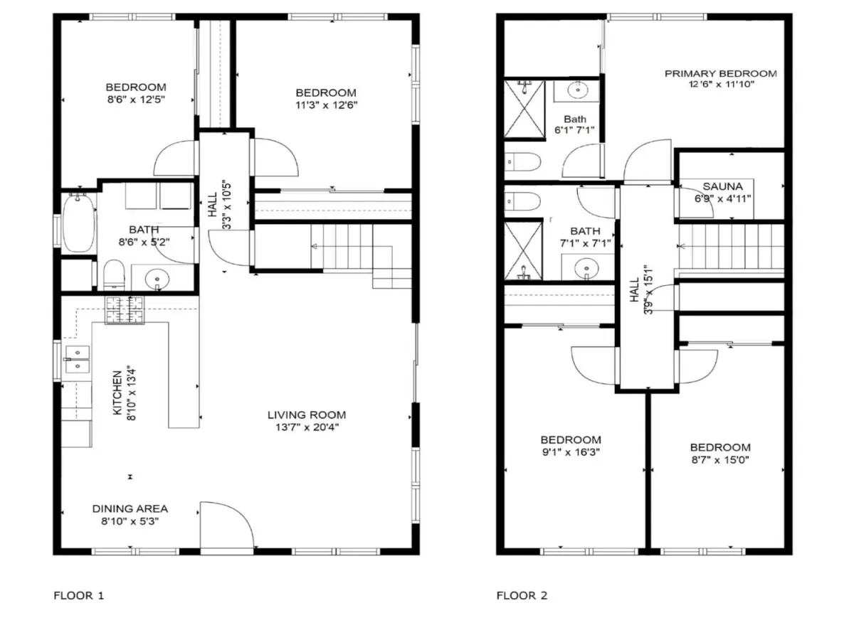
STR update: The proposed ordinance revisions include removal of the 150 foot buffer and a 900 permit residential cap. Hearings are scheduled for March with anticipated implementation in late April. STR buyers should prepare for potential permit competition.Currently priced below recently appraised value! Located in a CA Opportunity Zone which offers certain tax advantages to buyers. Outstanding recently remodeled home just down the street from world class Heavenly ski resort! Located on a large, approximately 1/4 acre wooded lot a mile from Lake Tahoe and within minutes to the casinos, gaming and nightlife at the Stateline. The home features 5 bedrooms and 3 full bathrooms. All the rooms are large and feature king beds. Enjoy the large walk around deck which allows access to a huge flat and level back yard. Recent upgrades to the home feature a new roof, hard wood floors throughout, new paint and carpet and new double pane vinyl windows. The kitchen is adorned with all new appliances, quartz custom counter tops with stone backsplash, and Shaker Toupe white cabinets. The first-floor bathroom has new tile flooring, vanity and a tub/shower combo. The guest bath on the second level also includes new tile flooring, vanity and a large stall shower. Additionally on the upper level is the primary bedroom with private bathroom also with new tile flooring, vanity and large stall shower. As a bonus there is also a dry SAUNA on the second level. Across the street is a forest service lot and there is a large 2 car garage with roof top deck with the potential for a future ADU style development. This stunning home in a wonderful location offers huge rental potential and exciting Lake Tahoe Living! Located in one of the rare CA opportunity zones which could provide tax advantages to buyers. If you are looking for a Heavenly area Lake Tahoe home this one is not to be missed.
Current real estate data for Single Family in South Lake Tahoe as of Mar 23, 2026
104
Single Family Listed
121
Avg DOM
554
Avg $ / SqFt
$1,464,375
Avg List Price
Property Details
Price:
$1,158,000
MLS #:
142404
Status:
Active
Beds:
5
Baths:
3
Type:
Single Family
Subtype:
Single Family Residence
Neighborhood:
heavenlyvalley
Listed Date:
Dec 22, 2025
Finished Sq Ft:
1,840
Lot Size:
10,890 sqft / 0.25 acres (approx)
Year Built:
1975
Schools
Interior
Exterior
Financial
Map
Contact Us
Mortgage Calculator
Community
- Address3702 Verdon Lane South Lake Tahoe CA
- NeighborhoodHeavenly Valley
- CitySouth Lake Tahoe
- CountyEl Dorado
- Zip Code96150
Property Summary
- 3702 Verdon Lane South Lake Tahoe CA is a Single Family for sale in South Lake Tahoe, CA, 96150. It is listed for $1,158,000 and features 5 beds, 3 baths, and has approximately 1,840 square feet of living space, and was originally constructed in 1975. The current price per square foot is $629. The average price per square foot for Single Family listings in South Lake Tahoe is $554. The average listing price for Single Family in South Lake Tahoe is $1,464,375. To schedule a showing of MLS#142404 at 3702 Verdon Lane in South Lake Tahoe, CA, contact your Paradise Real Estate agent at 530-541-2465.
Similar Listings Nearby
Courtesy of Matthew Bryant of Chase International – SLT. Disclaimer: All data relating to real estate for sale on this page comes from the Broker Reciprocity (BR) of the South Tahoe Association of Realtors. Detailed information about real estate listings held by brokerage firms other than Paradise Real Estate include the name of the listing broker. Neither the listing company nor Paradise Real Estate shall be responsible for any typographical errors, misinformation, misprints and shall be held totally harmless. The Broker providing this data believes it to be correct, but advises interested parties to confirm any item before relying on it in a purchase decision. Copyright 2026. South Tahoe Association of Realtors. All rights reserved. 3702 Verdon Lane
South Lake Tahoe, CA




























