Welcome to 1400 Golden Parkway in Fallon, on the river! This well-located home offers comfortable living on a generously sized lot in a quiet , established neighborhood. The interior features a functional layout with abundant natural light, a spacious living area, and a well-appointed kitchen with ample storage and workspace. The bedrooms are comfortably sized, including a primary suite designed for privacy and relaxation. Outside, the property provides plenty of space for outdoor enjoyment RV parking and river access. Conveniently located near schools, shopping, and local amenities, with an easy drive to Reno. Enjoy low power bills with the solar system! Seller giving Carpet credit ! Carpet and flooring to be professionally cleaned prior to COE
Current real estate data for Single Family in Fallon as of Mar 30, 2026
30
Single Family Listed
74
Avg DOM
304
Avg $ / SqFt
$534,169
Avg List Price
Property Details
Price:
$737,000
MLS #:
260003410
Status:
Active
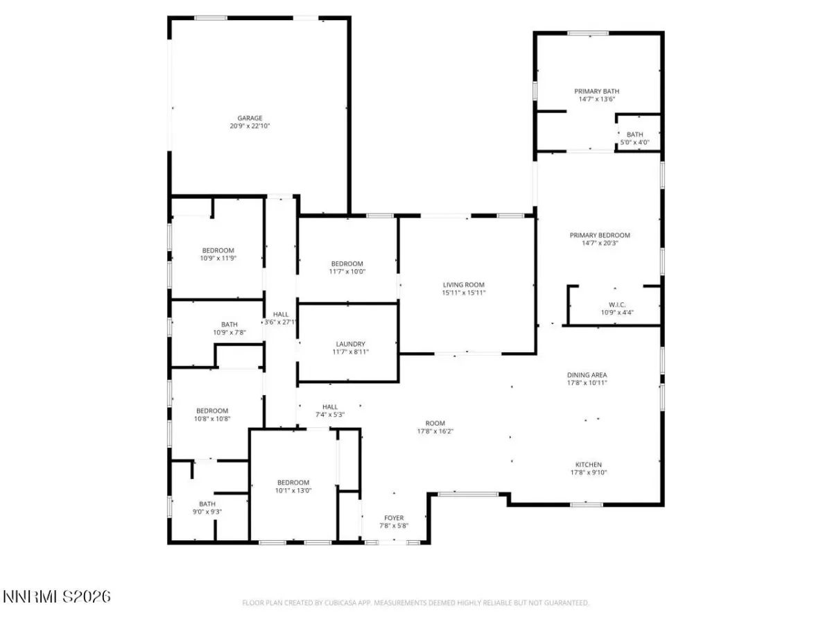
Beds:
4
Baths:
3
Type:
Single Family
Subtype:
Single Family Residence
Listed Date:
Mar 25, 2026
Finished Sq Ft:
2,648
Total Sq Ft:
2,648
Lot Size:
47,916 sqft / 1.10 acres (approx)
Year Built:
2003
Schools
Elementary School:
Fallon/Other
Middle School:
Churchill
High School:
Churchill
Interior
Appliances
Dishwasher, Dryer, Electric Oven, Gas Cooktop, Oven, Refrigerator, Washer
Bathrooms
3 Full Bathrooms
Cooling
Attic Fan, Central Air
Flooring
Carpet, Tile, Wood
Heating
Forced Air, Natural Gas
Interior Features
Ceiling Fan(s), High Ceilings, Kitchen Island, Primary Downstairs
Laundry Features
Cabinets, In Hall, Laundry Room, Shelves, Sink
Levels
One
Exterior
Attached Garage YN
1
Common Walls
No Common Walls
Construction Materials
Stucco
Exterior Features
Fire Pit, None
Fencing
Back Yard, Full
Garage Spaces
2
Lot Features
Landscaped, Level, Sprinklers In Front, Sprinklers In Rear
Other Structures
Outbuilding
Parking Features
Attached, Garage, Garage Door Opener, RV Access/Parking
Parking Spots
2
Parking Total
2
Roof
Composition, Pitched, Shingle
Security Features
Security System Owned, Smoke Detector(s)
Spa Features
None
Stories
1
View
Desert
Window Features
Double Pane Windows, Vinyl Frames
Financial
Taxes
$3,336
Map
Contact Us
Mortgage Calculator
Community
- Address1400 Golden Park Way Fallon NV
- CityFallon
- CountyChurchill
- Zip Code89406
Property Summary
- 1400 Golden Park Way Fallon NV is a Single Family for sale in Fallon, NV, 89406. It is listed for $737,000 and features 4 beds, 3 baths, and has approximately 2,648 square feet of living space, and was originally constructed in 2003. The current price per square foot is $278. The average price per square foot for Single Family listings in Fallon is $304. The average listing price for Single Family in Fallon is $534,169. To schedule a showing of MLS#260003410 at 1400 Golden Park Way in Fallon, NV, contact your Paradise Real Estate agent at 530-541-2465.
Similar Listings Nearby
Courtesy of Berney Realty, LTD. Disclaimer: All data relating to real estate for sale on this page comes from the Broker Reciprocity (BR) of the Northern Nevada Regional MLS. Detailed information about real estate listings held by brokerage firms other than Paradise Real Estate include the name of the listing broker. Neither the listing company nor Paradise Real Estate shall be responsible for any typographical errors, misinformation, misprints and shall be held totally harmless. The Broker providing this data believes it to be correct, but advises interested parties to confirm any item before relying on it in a purchase decision. Copyright 2026. Northern Nevada Regional MLS. All rights reserved. 1400 Golden Park Way
Fallon, NV































