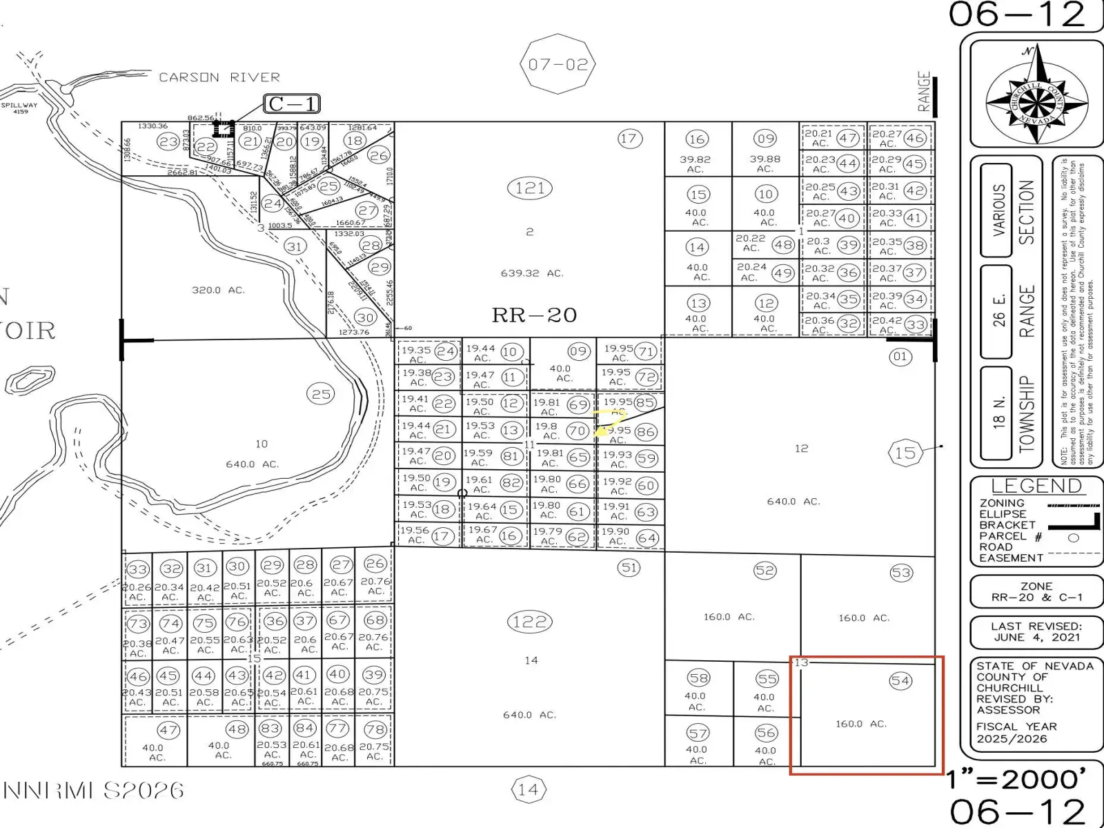
Grab your slice of untouched countryside and let your mind go wild out in Fallon, NV! 160 acres of untouched land is up for grabs and we would love to see you own it. Zoned to support 20-acre parcels, this property is the perfect candidate for subdivision with RR20 zoning, providing versatility in usage, ranging from agriculture, development, farming, and potentially an opportunity to grab a special use permit for mining, solar or geothermal adventures. You can maintain the full 160 acres for a private ranch/estate or divide it into smaller parcels for development down the road. The land offers both hilly and level topography, providing the exploratory adventure you may be looking for and privacy from every angle. Enjoy unobstructed 360-degree views of the Stillwater Mountains to the east and the Clan Alpine Range in the distance. You’ll have views of the reservoirs (Lahontan and Sheckler) atop the lot and may even experience runoff streams in peek rain and snow seasons! The land is a beautiful tapestry of native sagebrush and desert grasses, providing a natural, low-maintenance landscape that captures the true spirit of Nevada. At such a low price per acre, you may just be ready to begin living the agricultural, farming or no-neighbor life in one of Nevada’s ever-growing rural communities. Get your boots on and go explore! **The route to 160 acres of opportunity is provided in our photography and will require ground clearance or a 4×4.
Property Details
Price:
$98,000
MLS #:
260000992
Status:
Active
Beds:
0
Baths:
0
Type:
Land
Listed Date:
Jan 29, 2026
Lot Size:
6,969,600 sqft / 160.00 acres (approx)
Schools
Elementary School:
Fallon/Other
Middle School:
Churchill
High School:
Churchill
Interior
Exterior
Other Structures
None
Financial
Taxes
$308
Map
Contact Us
Mortgage Calculator
Community
- Address16642 Power Line Road Fallon NV
- CityFallon
- CountyChurchill
- Zip Code89406
Property Summary
- 16642 Power Line Road Fallon NV is a Land for sale in Fallon, NV, 89406. It is listed for $98,000 and features 160 acres. To schedule a showing of MLS#260000992 at 16642 Power Line Road in Fallon, NV, contact your Paradise Real Estate agent at 530-541-2465.
Similar Listings Nearby
Courtesy of Keller Williams Group One Inc.. Disclaimer: All data relating to real estate for sale on this page comes from the Broker Reciprocity (BR) of the Northern Nevada Regional MLS. Detailed information about real estate listings held by brokerage firms other than Paradise Real Estate include the name of the listing broker. Neither the listing company nor Paradise Real Estate shall be responsible for any typographical errors, misinformation, misprints and shall be held totally harmless. The Broker providing this data believes it to be correct, but advises interested parties to confirm any item before relying on it in a purchase decision. Copyright 2026. Northern Nevada Regional MLS. All rights reserved. 16642 Power Line Road
Fallon, NV























































