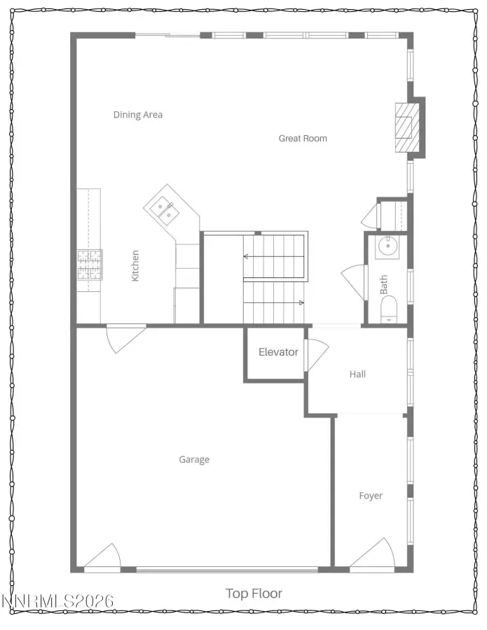
Luxury Living Elevated! Perched above Incline Village, this end-unit condo offers you an unparalleled Tahoe lifestyle with panoramic views of Lake Tahoe and Diamond Peak Ski Resort framing every window, while the seasonal melody of Third Creek echoes from the valley below. Effortless Alpine Luxury – Forget the stairsāa private internal elevator serves the top three floors, making every level easily accessible. Comfort is a year-round priority with 4-zone radiant floor heating and top-floor air conditioning. The open-concept Great Room flows seamlessly from a gourmet kitchen with granite counters to a private balcony equipped with a natural gas BBQ hookupāperfect for sunset entertaining and gazing at the lake views. Smart & Secure – This is a truly “intelligent” home, featuring a Control 4 Home Automation System that manages security, lighting, and climate. Peace of mind comes standard with a smart leak detection system and automatic water shut-off. Additional features include master bedroom with fireplace, balcony, and a walk-in closet – all on one private floor with laundry; an en suite bedroom/office/den combo with a Murphy bed and wet bar – perfect for entertaining or long term guests; a subgrade wine closet with a 192-bottle capacity; and a finished 2-car garage with epoxy floors, built-in workbench, overhead bike storage, and private spa. Experience the best of Incline Village from this impeccably maintained property.
Current real estate data for Condo in Incline Village as of Apr 07, 2026
35
Condo Listed
168
Avg DOM
807
Avg $ / SqFt
$1,109,621
Avg List Price
Property Details
Price:
$2,649,000
MLS #:
260002657
Status:
Active
Beds:
4
Baths:
3.5
Type:
Condo
Subtype:
Condominium
Subdivision:
Ski Lane Bitterbrush 2
Listed Date:
Mar 11, 2026
Finished Sq Ft:
2,961
Total Sq Ft:
2,961
Year Built:
2001
Schools
Elementary School:
Incline
Middle School:
Incline Village
High School:
Incline Village
Interior
Appliances
Dishwasher, Disposal, Dryer, Gas Range, Microwave, Refrigerator, Washer
Bathrooms
3 Full Bathrooms, 1 Half Bathroom
Fireplaces Total
2
Flooring
Carpet, Ceramic Tile, Porcelain, Stone, Wood
Heating
Natural Gas, Radiant Floor
Interior Features
Breakfast Bar, Central Vacuum, Elevator, Lift or Stair Chair, High Ceilings, Smart Thermostat, Vaulted Ceiling(s), Walk-In Closet(s)
Laundry Features
Cabinets, In Hall, Laundry Closet, Washer Hookup
Levels
Three Or More
Exterior
Association Amenities
Landscaping, Management, Parking
Attached Garage YN
1
Common Walls
1 Common Wall, End Unit, No One Above, No One Below
Exterior Features
Balcony
Fencing
None
Garage Spaces
2
Lot Features
Common Area, Sloped Down, Steep Slope
Other Structures
None
Parking Features
Additional Parking, Attached, Garage, Garage Door Opener
Parking Spots
2
Parking Total
2
Patio And Porch Features
Deck
Roof
Composition, Pitched, Shingle
Security Features
Fire Alarm, Fire Escape, Fire Sprinkler System, Keyless Entry, Security System Owned, Smoke Detector(s)
Spa Features
Above Ground
Stories
4
View
Mountain(s), Ski Resort
Window Features
Blinds, Double Pane Windows, Drapes, Metal Frames
Financial
HOA Fee
$970
HOA Fee Frequency
Monthly
HOA Includes
Insurance, Maintenance Grounds, Maintenance Structure, Sewer, Snow Removal, Trash, Water
HOA Name
Bitterbrush II Homeowners Association
Taxes
$10,346
Map
Contact Us
Mortgage Calculator
Community
- Address400 Fairview Boulevard UNIT 162 Incline Village NV
- SubdivisionSki Lane Bitterbrush 2
- CityIncline Village
- CountyWashoe
- Zip Code89451
Property Summary
- Located in the Ski Lane Bitterbrush 2 subdivision, 400 Fairview Boulevard UNIT 162 Incline Village NV is a Condo for sale in Incline Village, NV, 89451. It is listed for $2,649,000 and features 4 beds, 4 baths, and has approximately 2,961 square feet of living space, and was originally constructed in 2001. The current price per square foot is $895. The average price per square foot for Condo listings in Incline Village is $807. The average listing price for Condo in Incline Village is $1,109,621. To schedule a showing of MLS#260002657 at 400 Fairview Boulevard UNIT 162 in Incline Village, NV, contact your Paradise Real Estate agent at 530-541-2465.
Similar Listings Nearby
Courtesy of CalNeva Realty. Disclaimer: All data relating to real estate for sale on this page comes from the Broker Reciprocity (BR) of the Northern Nevada Regional MLS. Detailed information about real estate listings held by brokerage firms other than Paradise Real Estate include the name of the listing broker. Neither the listing company nor Paradise Real Estate shall be responsible for any typographical errors, misinformation, misprints and shall be held totally harmless. The Broker providing this data believes it to be correct, but advises interested parties to confirm any item before relying on it in a purchase decision. Copyright 2026. Northern Nevada Regional MLS. All rights reserved. 400 Fairview Boulevard UNIT 162
Incline Village, NV



















































