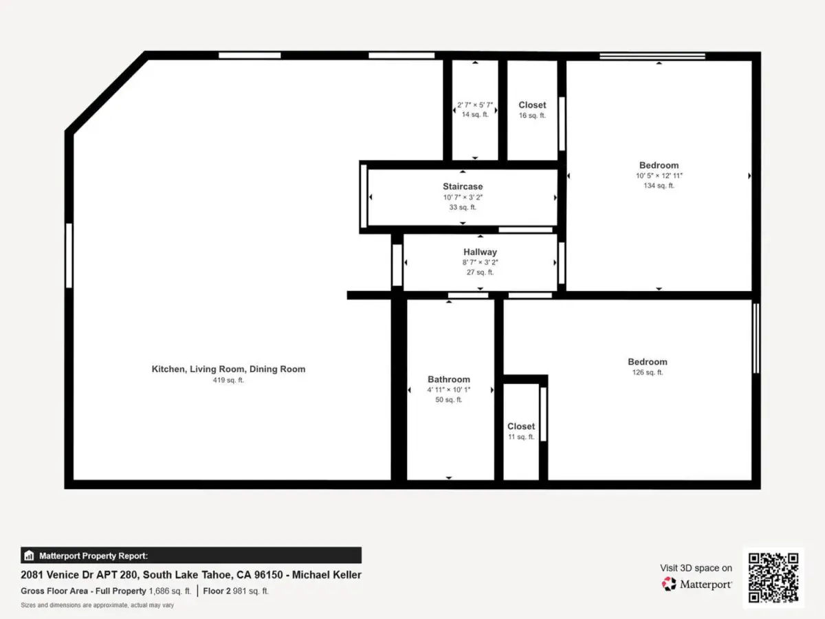
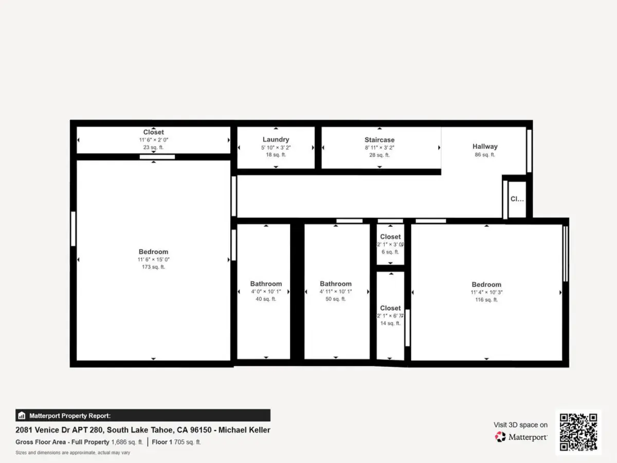
Premier Turn-Key Tahoe Keys Townhome! —Welcome to 2081 Venice Drive #280 a rare, fully remodeled four-bedroom Tahoe Keys townhome in a coveted corner location, offering exceptional water and mountain views. This sought-after upstairs living floor plan is highlighted by two walls of floor-to-ceiling windows overlooking the lagoon and your private boat dock just steps from the back door. —The open great room showcases a stunning river rock fireplace, open-beam ceilings, and a beautifully updated kitchen featuring stainless steel appliances, a farmhouse sink, abundant cabinetry, and slab quartz countertops. Heated plank tile floors, designer lighting, and tasteful furnishings create a refined yet comfortable atmosphere. A wraparound deck captures panoramic views of the water, marina, Mt. Tallac, and Heavenly Ski Resort. Two additional bedrooms and a remodeled full bathroom complete the upper level.The lower level includes a third guest bedroom, shared bathroom, full laundry with oversized washer and dryer, and the private primary suite. The primary retreat offers dual closets, a remodeled ensuite bathroom, and direct access to a lower deck with tranquil marina and dock views.Recent upgrades include heated tile flooring in the living areas and bathrooms, wool carpeting, shaker-style doors with upgraded hardware, smart thermostats, fresh interior paint, custom window coverings, and new millwork throughout. —Enjoy full access to Tahoe Keys amenities, including indoor and outdoor pools, two private beaches, pier access, tennis and pickleball courts, basketball courts, and multiple community parks. The open waters of Lake Tahoe are just a short boat ride away, while world-class skiing, shopping, dining, and nightlife are only minutes from your door. —Offered fully furnished and truly move-in ready, this exceptional property also presents strong income potential with monthly rentals and possible future short-term rental opportunities. Don’t hesitate, schedule your private showing today and experience Tahoe Keys living at its finest.
Current real estate data for Condo in South Lake Tahoe as of Mar 23, 2026
47
Condo Listed
153
Avg DOM
570
Avg $ / SqFt
$711,464
Avg List Price
Property Details
Price:
$879,000
MLS #:
142430
Status:
Active
Beds:
4
Baths:
3
Type:
Condo
Subtype:
Townhouse
Neighborhood:
tahoekeys
Listed Date:
Jan 7, 2026
Finished Sq Ft:
1,602
Lot Size:
871 sqft / 0.02 acres (approx)
Year Built:
1969
Schools
Interior
Exterior
Financial
Map
Contact Us
Mortgage Calculator
Community
- Address2081 Venice Drive 280 South Lake Tahoe CA
- NeighborhoodTahoe Keys
- CitySouth Lake Tahoe
- CountyEl Dorado
- Zip Code96150
Property Summary
- 2081 Venice Drive 280 South Lake Tahoe CA is a Condo for sale in South Lake Tahoe, CA, 96150. It is listed for $879,000 and features 4 beds, 3 baths, and has approximately 1,602 square feet of living space, and was originally constructed in 1969. The current price per square foot is $549. The average price per square foot for Condo listings in South Lake Tahoe is $570. The average listing price for Condo in South Lake Tahoe is $711,464. To schedule a showing of MLS#142430 at 2081 Venice Drive 280 in South Lake Tahoe, CA, contact your Paradise Real Estate agent at 530-541-2465.
Similar Listings Nearby
Courtesy of Michael Keller of Keller Properties. Disclaimer: All data relating to real estate for sale on this page comes from the Broker Reciprocity (BR) of the South Tahoe Association of Realtors. Detailed information about real estate listings held by brokerage firms other than Paradise Real Estate include the name of the listing broker. Neither the listing company nor Paradise Real Estate shall be responsible for any typographical errors, misinformation, misprints and shall be held totally harmless. The Broker providing this data believes it to be correct, but advises interested parties to confirm any item before relying on it in a purchase decision. Copyright 2026. South Tahoe Association of Realtors. All rights reserved. 2081 Venice Drive 280
South Lake Tahoe, CA









































