Fall Asleep to Wood Creek, Wake Up Beneath the Pines ā A Fully Remodeled Incline Village Sanctuary. Some opportunities are simply in a class of their own. Tucked into the back row, end unit position of Northwood Estates ā with direct frontage on the year-round Wood Creek ā this fully remodeled townhouse represents the finest setting in the entire complex. Privacy, nature, and luxury converge here in a way that no other unit in the community can replicate. The moment you step inside, the level of finish is unmistakable. The chef’s kitchen is a true showpiece: custom cabinetry crafted for both beauty and function, Dekton and stone countertops, designer lighting throughout, a full GE CafĆ© appliance suite, and double ovens ā all anchored by an expansive layout with more counter and storage space than anything else in the community. Whether you’re hosting an aprĆØs-ski gathering or a summer dinner party on the lake, this kitchen rises to every occasion. New flooring flows seamlessly throughout the entire home, completing a top-to-bottom renovation where every detail has been considered and nothing has been left untouched. Outside, this unit offers something no other home in the complex can: a private side door that opens exclusively onto the creekside open space, placing you directly in nature the moment you step out. The private back patio extends the living space outdoors, where the sound of Wood Creek replaces every other distraction. Mornings here begin with birdsong and flowing water. Evenings wind down beneath a canopy of pines. It is the kind of setting that makes you forget the rest of the world exists. With full IVGID privileges, the Incline Village lifestyle is yours in its entirety ā exclusive access to three private Lake Tahoe beaches complete with BBQ areas, picnic grounds, and a boat launch; year-round swimming and a state-of-the-art fitness center; two championship golf courses; tennis and pickleball courts; and Diamond Peak Ski Resort just minutes from your door. The celebrated Lakeshore trail winds three miles from the village all the way to Sand Harbor State Park, one of the most iconic destinations on the entire lake. Beyond the amenities, Nevada’s renowned tax advantages make this a residence that is as financially compelling as it is breathtaking. Covered parking sits just steps from the front door ā a detail that matters most on a snowy Tahoe morning. Walkable to Raley’s, local dining, the library, and fitness. Whether this becomes your full-time sanctuary or your ultimate Tahoe escape, one thing is certain: a creekside end unit of this caliber, at this level of finish, in this location, does not come available twice.
Current real estate data for Condo in Incline Village as of Apr 20, 2026
35
Condo Listed
154
Avg DOM
753
Avg $ / SqFt
$1,054,361
Avg List Price
Property Details
Price:
$1,089,000
MLS #:
260004518
Status:
Active
Beds:
3
Baths:
2.5
Type:
Condo
Subtype:
Condominium
Subdivision:
Northwood Estates Condominium
Listed Date:
Apr 15, 2026
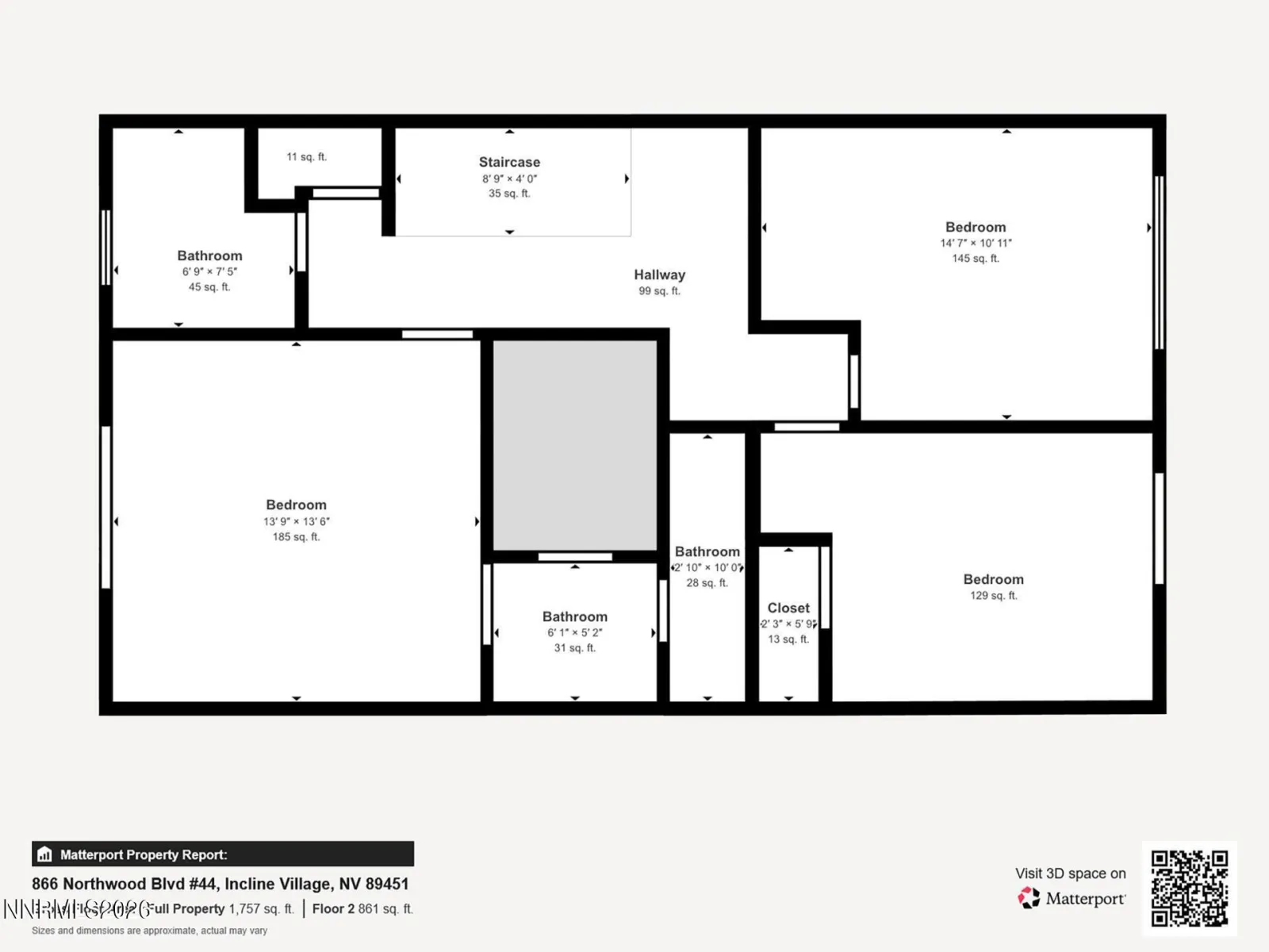
Finished Sq Ft:
1,716
Total Sq Ft:
1,716
Year Built:
1968
Schools
Elementary School:
Incline
Middle School:
Incline Village
High School:
Incline Village
Interior
Appliances
Dishwasher, Disposal, Double Oven, Dryer, Gas Cooktop, Gas Range, Microwave, Oven, Refrigerator, Washer
Bathrooms
2 Full Bathrooms, 1 Half Bathroom
Fireplaces Total
1
Flooring
Ceramic Tile, Luxury Vinyl
Heating
Forced Air, Natural Gas
Interior Features
Kitchen Island, Smart Thermostat, Walk-In Closet(s)
Laundry Features
Cabinets, In Hall, In Unit, Laundry Closet, Washer Hookup
Levels
Two
Exterior
Association Amenities
Landscaping, Management, Parking
Common Walls
1 Common Wall, End Unit, No One Above, No One Below
Construction Materials
Frame
Exterior Features
Balcony
Fencing
Back Yard
Lot Features
Level
Other Structures
Shed(s)
Parking Features
Permit Required, Carport, Detached
Parking Spots
2
Parking Total
2
Patio And Porch Features
Porch, Patio, Deck
Roof
Composition
Security Features
Carbon Monoxide Detector(s), Smoke Detector(s)
Spa Features
None
Stories
2
View
Trees/Woods
Window Features
Double Pane Windows, Window Coverings
Financial
HOA Fee
$695
HOA Fee Frequency
Monthly
HOA Includes
Insurance, Maintenance Grounds, Maintenance Structure, Sewer, Snow Removal, Trash, Water
HOA Name
Northwood Estates
Taxes
$3,190
Map
Contact Us
Mortgage Calculator
Community
- Address866 Northwood Boulevard UNIT 44 Incline Village NV
- SubdivisionNorthwood Estates Condominium
- CityIncline Village
- CountyWashoe
- Zip Code89451
Property Summary
- Located in the Northwood Estates Condominium subdivision, 866 Northwood Boulevard UNIT 44 Incline Village NV is a Condo for sale in Incline Village, NV, 89451. It is listed for $1,089,000 and features 3 beds, 3 baths, and has approximately 1,716 square feet of living space, and was originally constructed in 1968. The current price per square foot is $635. The average price per square foot for Condo listings in Incline Village is $753. The average listing price for Condo in Incline Village is $1,054,361. To schedule a showing of MLS#260004518 at 866 Northwood Boulevard UNIT 44 in Incline Village, NV, contact your Paradise Real Estate agent at 530-541-2465.
Similar Listings Nearby
Courtesy of Casa Tua. Disclaimer: All data relating to real estate for sale on this page comes from the Broker Reciprocity (BR) of the Northern Nevada Regional MLS. Detailed information about real estate listings held by brokerage firms other than Paradise Real Estate include the name of the listing broker. Neither the listing company nor Paradise Real Estate shall be responsible for any typographical errors, misinformation, misprints and shall be held totally harmless. The Broker providing this data believes it to be correct, but advises interested parties to confirm any item before relying on it in a purchase decision. Copyright 2026. Northern Nevada Regional MLS. All rights reserved. 866 Northwood Boulevard UNIT 44
Incline Village, NV
































