0 Jamestown Avenue
Lovelock, NV, 89419
$1,356,000
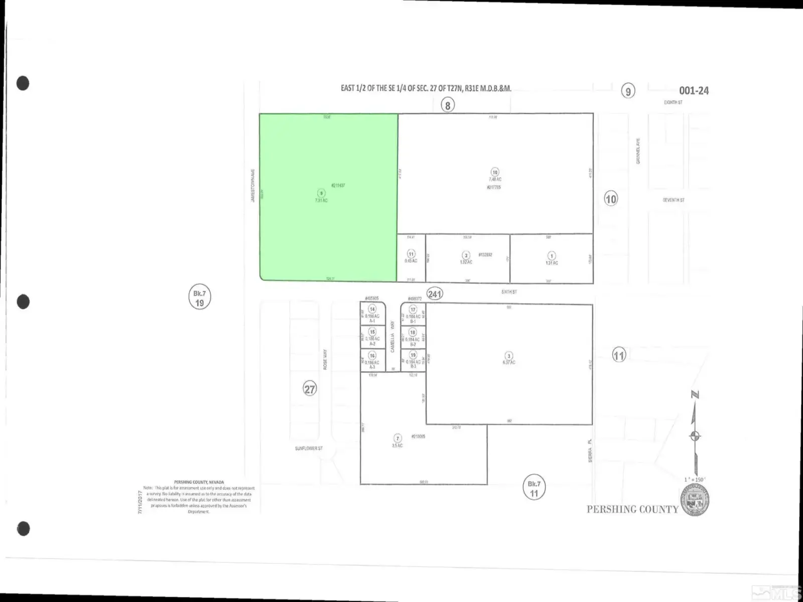
Two adjacent, undeveloped acreage parcels on Jamestown Ave and 6th St within the city limits of Lovelock, NV 89419. Total land area of 13.56+- acres. Surrounding properties are developed–this is an infill project. Water, sewer, natural gas, electric, and phone are present along adjacent street(s) and available for connection. Fencing along some lot lines. Lovely westward views of mountains and sunsets across agricultural fields. 50+ lots appear possible based on current single family residential zoning., DEVELOPER PROJECT: INFILL ACREAGE IN CITY FOR RESIDENTIAL SUBDIVISION Two adjacent, undeveloped acreage parcels on Jamestown Ave and 6th St within the city limits of Lovelock, NV 89419. Total land area of 13.56+- acres. Surrounding properties are developed–this is an infill project. Water, sewer, natural gas, electric, and phone are present along adjacent street(s) and available for connection. Fencing along some lot lines. Lovely westward views of mountains and sunsets across agricultural fields. This is the largest undeveloped acreage property within the City of Lovelock. City is in need of and receptive to new housing. 50+ lots appear possible based on current single family residential zoning. Higher density or alternative uses may be possible with a zoning change. Seller will not separate the parcels; must be purchased together. Pershing County APN’s 001-081-36 and 001-241-09 GPS 40.178169, -118.484406 Directions: I-80 exit 106, go west on Main St, left on Dartmouth Ave, right on 6th St. Property will be on your right, beginning approximately across the street from Rose Way, continuing to the end of the street at Jamestown Ave, and continuing approximately 1000 feet northward on Jamestown Ave to the first existing house.
Property Details
Price:
$1,356,000
MLS #:
230003481
Status:
Active
Beds:
0
Baths:
0
Type:
Land
Listed Date:
Apr 18, 2023
Lot Size:
590,674 sqft / 13.56 acres (approx)
Schools
Elementary School:
Lovelock
Middle School:
Pershing
High School:
Pershing
Interior
Exterior
Financial
Taxes
$2,008
Map
Contact Us
Mortgage Calculator
Community
- Address0 Jamestown Avenue Lovelock NV
- CityLovelock
- CountyPershing
- Zip Code89419
Property Summary
- 0 Jamestown Avenue Lovelock NV is a Land for sale in Lovelock, NV, 89419. It is listed for $1,356,000 and features 14 acres. To schedule a showing of MLS#230003481 at 0 Jamestown Avenue in Lovelock, NV, contact your Compass agent at 530-541-2465.
Similar Listings Nearby
Courtesy of Desert Acreage. Disclaimer: All data relating to real estate for sale on this page comes from the Broker Reciprocity (BR) of the Northern Nevada Regional MLS. Detailed information about real estate listings held by brokerage firms other than Compass include the name of the listing broker. Neither the listing company nor Compass shall be responsible for any typographical errors, misinformation, misprints and shall be held totally harmless. The Broker providing this data believes it to be correct, but advises interested parties to confirm any item before relying on it in a purchase decision. Copyright 2025. Northern Nevada Regional MLS. All rights reserved. 0 Jamestown Avenue
Lovelock, NV























